Unsere Räumlichkeiten
Ob Tagung, Tanzveranstaltung, Assessment Center, Showing, Mitarbeiterschulung oder privater Anlass: In unseren Räumlichkeiten werden wir Ihren Ansprüchen gerecht.
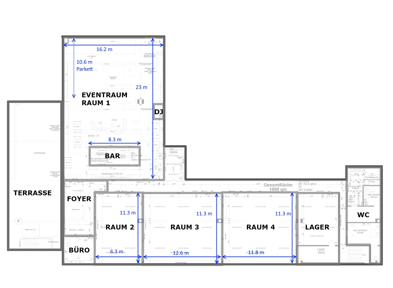
Eventraum 1
Ausstattung:
- Raumgrösse 368 m²
- Raumhöhe 3.8 m
- High End Audio Anlage (Kling & Freitag Hoellstern)
- Beamer inkl. 4x3m Leinwand
- voll ausgestattetes DJ Pult
- Eventbeleuchtung
- Flatscreen
- grosse, freistehende Bar
- Lounges mit diversen Sitzgelegenheiten
- mobile Bühne
- Tanzfläche (ca. 160 m² - mit Tanzboden)
- grosse Spiegelwand
- Tageslicht
- direkter Zugang zur Terrasse
Raum 2, 3 und 4
Unsere Mehrzweck- und Bewegungsräume, hier wird Multifunktionalität GROSS geschrieben. Die Räume sind zweckmässig eingerichtet und können in kürzester Zeit vom Tanzstudio zum Tagungsraum umgestaltet werden.
Ausstattung
- Raumgrössen: Raum 1 (368 m²), Raum 2 (76 m²), Raum 3 (142 m²), Raum 4 (132 m²)
- Raumhöhe 3.8 m
- Grosse Spiegelwände
- Tanzböden
- Stimmungslicht
- Audio-Anlage
- Grosse Garderobe
- Mobile Bar
- Sitzgelegenheiten
- Tageslicht
Terrasse
Zürich West Open Air - hier kann man grillen, chillen und die Szenerie geniessen.
Ausstattung:
- Grösse 250 m²
- Audio Anlage (Kopplung mit Eventraum möglich)
- Diverse Sitzgelegenheiten, teilweise originale Stühle von der Piazza Ascona
- Bepflanzung
- Grill und Gartenbar auf Wunsch möglich
Raumindex
| Fläche m2 |
Kino |
U-Form | Seminar | Technik fix | ||
| Eventraum 1 | 368 | 160 | 60 | 100 |
3 Beamer Sound |
|
| Raum 2 | 76 | 40 | 20 | 30 | 1 Beamer | |
| Raum 3 | 142 | 50 | 40 | 50 | 1 Beamer | |
| Raum 4 | 132 | 50 | 35 | 50 | 1 Beamer | |
| Terrasse | 250 | 150 | - | - | - | - |
| Duttihalle | 433 | 300 | 120 | 200 | 4 Beamer |











































